
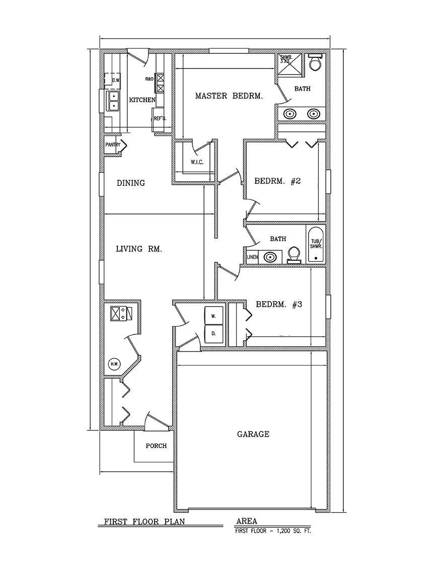
The Boxeler ranch masters floor space with its 1200 sq ft. It boasts three bedrooms, 2 full baths, walk-in closets, a kitchen with an island, living room, dining room, and a laundry/mud room.
The home features an impressive entryway with a large closet. Head down to the hallway into the open floor plan of the main living and dining area. Off of the dining area is the spacious galley kitchen and pantry. The primary bedroom suite has its own full bath and walk-in closet. The other two bedrooms are nicely sized with ample closet room. Finally stepping from the 2-car attached garage into the home is the laundry/mud room.