
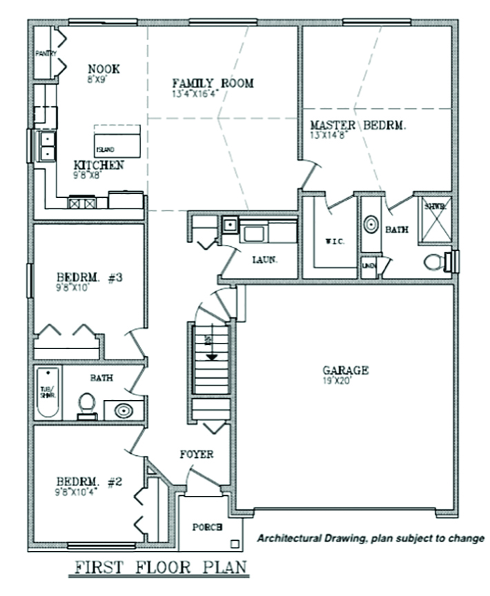
The Beech Ranch is a lovely balance of space and light. This floor model features 1290 sq ft that includes three bedrooms, 2 full baths, walk-in closets, a kitchen with an island, living room, dining room, and a separate laundry room.
The home opens to a nicely sized entryway with a closet. The two bedrooms and the full bath are perfect for kids or guests to enjoy. The Beech features a large laundry room and an oversized entryway from the 2-car attached garage. Step into the open floor plan of the main living with cathedral ceilings. The large spacious open kitchen also includes an island with a convenience outlet, room for a table in the nook, and an oversized pantry. Finally, the private primary bedroom suite is located off the living area and has cathedral ceilings of its own, large windows, a full bath, and a walk-in closet.