
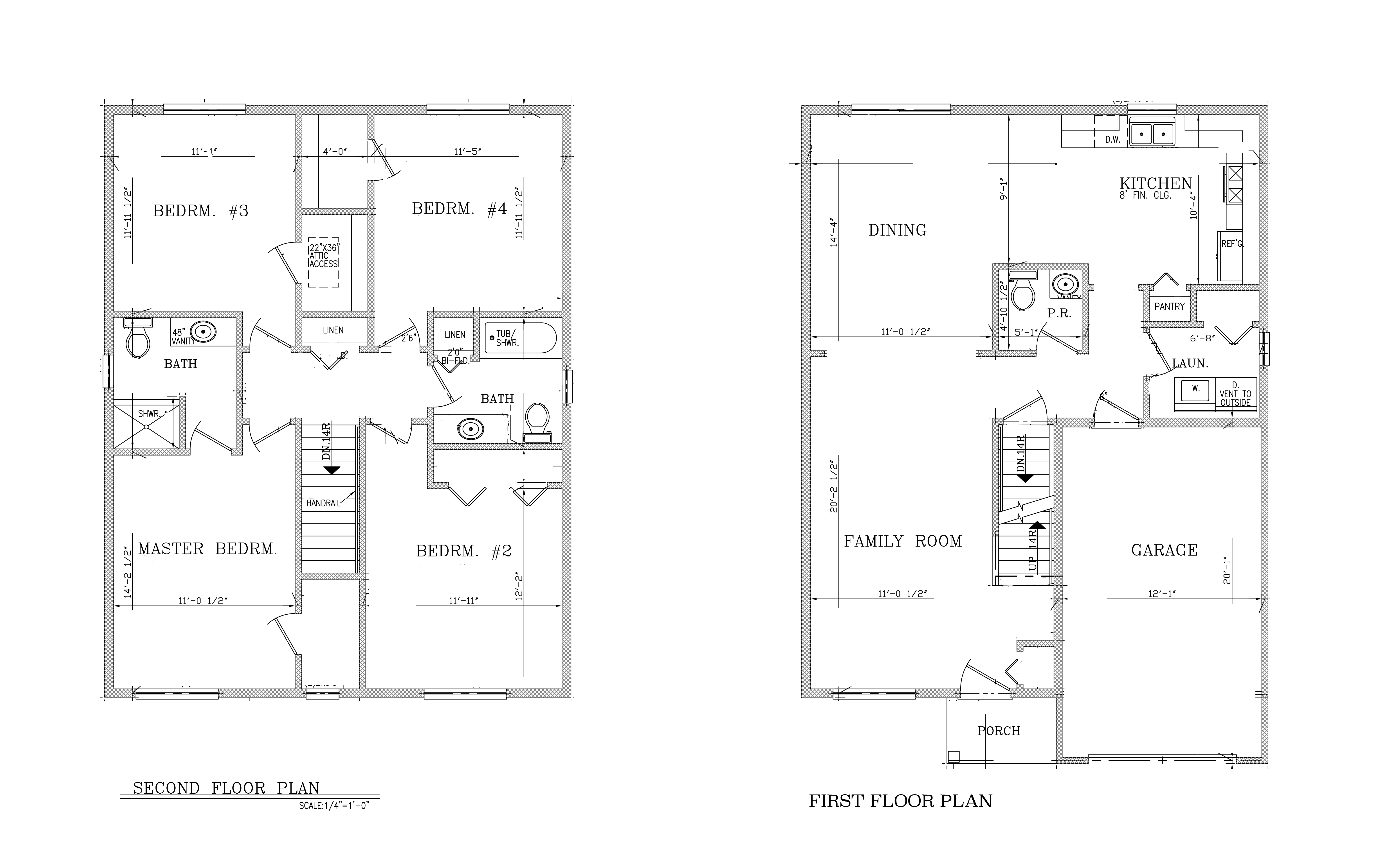
Need a 4-bedroom floor plan? Look no further. The Ash is for you. It includes 4 bedrooms, 2 full baths, a half bath, family room, dining room, kitchen, and a laundry room. Plus a 1-car attached garage.
If you need room to spread out, the Ash floor plan can solve that. The entire first floor is open. Each area flows into the other. The large living room opens into the massive dining that leads into the kitchen. The area for the kitchen is so large a table could also fit. From the entryway of the 1-car attached garage don’t miss the first-floor laundry room and the half bath. Upstairs are the four bedrooms and 2 full baths. Each bedroom is nicely sized with large closets in every room. The spacious primary bedroom includes a primary full bath and walk-in closet.